




基础信息
型号:XQJ-TB-01/2/3/4
产品描述
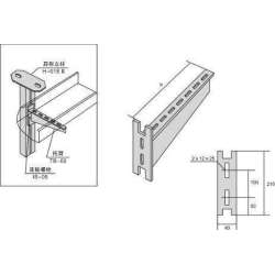
支撑臂支架是支撑电缆托架和电缆的主要部件,并且由柱,柱底座,支撑臂等组成。
我厂生产的支架托架按日本,德国同类产品设计; 它具有结构简单,重量轻,成本低,强度高,造型美观的优点,可以满足不同的环境条件(工艺管架,地板)不同形式的安装要求(悬挂,直立,侧壁,单边, 在下部,墙壁和电缆沟槽上提供多边的和多层的。
如果电缆桥架需要通过多层重载提升,则应尽可能双层,以避免过大的偏心载荷。
支架臂表面采用电镀锌,热锌,喷漆和喷涂处理。